Kabco Williston
Description
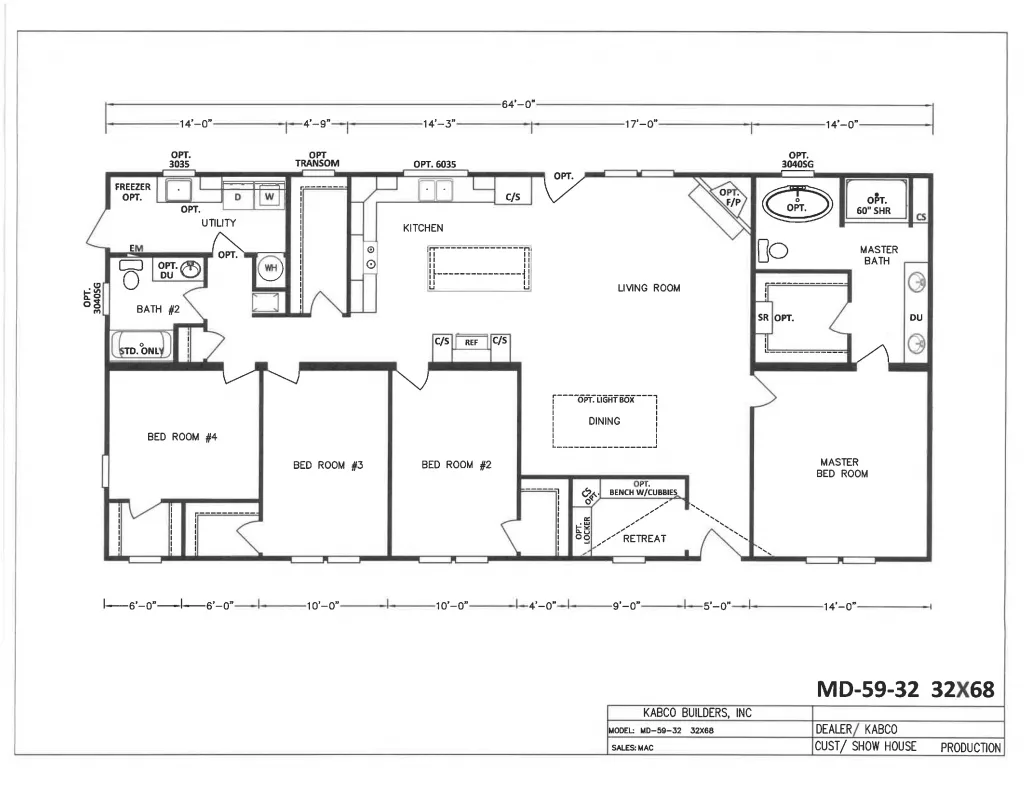
The Kabco Williston (MD-59-32): Designed for Modern Family Living
The Kabco Williston, model MD-59-32, is an impressive double-wide manufactured home from the Kabco Builders’ MD Series, expertly crafted to accommodate the demands of a growing family. Spanning approximately 1,920 square feet with typical dimensions of 32 feet by 68 feet, the Williston offers a spacious and highly functional 4-bedroom, 2-bathroom layout. This popular floor plan is distinguished by its seamless, open-concept design that blends the living room, dining area, and kitchen, creating an expansive central hub perfect for entertaining guests or simply enjoying quality family time.
The design philosophy behind the Williston centers on everyday convenience and comfort. The kitchen serves as a focal point, often featuring modern, energy-efficient stainless steel appliances and ample workspace. A large kitchen island with a breakfast bar is a common and highly practical feature, providing extra seating and prep space. Thoughtful organizational elements are integrated throughout the home, including a substantial walk-in pantry for storage and a dedicated utility/laundry room that helps keep the home running smoothly. Some versions of the Williston even include a convenient entry area with built-in lockers and cubbies—a highly desired mudroom feature for families.
Privacy and luxury are paramount in the master suite, which is positioned as a tranquil retreat. It includes a spacious main bedroom and a large walk-in closet providing generous storage. The spa-inspired master bath is well-appointed with a double-sink vanity, a separate garden/soaker tub, and an enclosed shower. The remaining bedrooms are generally well-sized and often feature individual walk-in closets, minimizing arguments over space and maximizing storage for every occupant.
Constructed with an emphasis on durability, the Williston includes a structure built with 2×4 exterior wall studs and interior walls at 16-inch centers, 5/8-inch tongue and groove OSB floor decking, and an excellent insulation package (typically R-11 for floors and walls, and R-19 for the ceiling). The result is a comfortable, energy-efficient, and stylish home that delivers an exceptional combination of space, function, and modern amenities for a superior value.
Overview
Features & Amenities
- Features
- Frame and Floor
- Construction and Exterior
- Electrical and Plumbing
- Interior
Location
Tag
Review
Login to Write Your ReviewThere are no reviews yet.



