Kabco Stagecoach
Description
The Kabco Stagecoach (MD-43-32): A Spacious Oasis of Modern Living
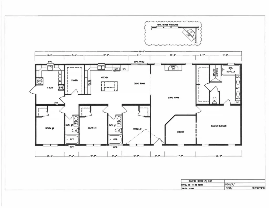
The Kabco Stagecoach (Model MD-43-32) stands as a premier example of a spacious and luxurious manufactured home, expertly designed to accommodate the needs of a growing family without sacrificing style or comfort. This double-wide home typically boasts 4 bedrooms and 3 full bathrooms, encompassing a generous living area of approximately 2,280 square feet. With a standard dimension of 32 feet by 80 feet, this floor plan maximizes every inch, creating an environment that is both grand and highly functional.
At the heart of the Stagecoach’s appeal is its open-concept design. A welcoming foyer entry leads seamlessly into the main living areas, where the living room, dining space, and kitchen blend effortlessly. This expansive, free-flowing layout is perfect for modern lifestyles, facilitating easy entertaining and ensuring that family members can connect regardless of where they are in the central hub. Adding a touch of elegance and warmth, a built-in fireplace often serves as a focal point in the living area, creating a cozy ambiance.
The kitchen is a true culinary delight, designed for both casual family meals and hosting guests. It features a substantial kitchen island with a breakfast bar for quick dining, complemented by a stylish farmhouse-style sink. The cabinetry is often a high-quality, 5-piece raised panel design, and a dedicated, large walk-in pantry provides abundant storage space. Additional features like energy-efficient appliances, including an 18-foot refrigerator with an icemaker and a dishwasher, ensure maximum utility.
The Stagecoach excels in creating a luxurious retreat for homeowners with its master suite. The large master bedroom is often equipped with a separate Bonus Retreat Room or area, offering a private space for relaxation or an office. The Ensuite master bathroom is spa-like, featuring high-end fixtures such as a soaker tub and a separate, large rain shower. The floor plan utilizes a “split bedroom” design, separating the master suite from the secondary bedrooms, which all feature walk-in closets and are served by the remaining two well-appointed bathrooms.
Built with a focus on durability and energy efficiency, the construction includes features like 2×4 exterior wall studs spaced 16 inches on center, R-11 floor and wall insulation, and R-19 ceiling insulation. The combination of its impressive size, modern amenities, and thoughtful, flexible layout positions the Kabco Stagecoach as an ideal, elegant, and practical home for large or multi-generational families.
Overview
Features & Amenities
- Features
- Frame and Floor
- Construction and Exterior
- Electrical and Plumbing
- Interior
Location
Tag
Review
Login to Write Your ReviewThere are no reviews yet.



