Kabco Josey Wales

Report Abuse
Entry
Dining room 1
Dining room
Kitchen 1
Kitchen 2
Kitchen
Living room
Utility
Bedroom 2
Spare Bathroom
Spare Bathroom 1
Master Bedroom
Master Closet
Master Shower
Master Bathroom
Master Bathroom tub
Master Vanity
floorplan
Entry
Dining room 1
Dining room
Kitchen 1
Kitchen 2
Kitchen
Living room
Utility
Bedroom 2
Spare Bathroom
Spare Bathroom 1
Master Bedroom
Master Closet
Master Shower
Master Bathroom
Master Bathroom tub
Master Vanity
floorplan

Description

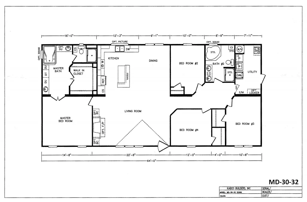
The Kabco Josey Wales, also designated as the MD-30-32 model, is a skillfully designed and quality-built manufactured home offering generous space for contemporary family living. The floor plan, typically measuring 32 feet wide by 68 feet long, provides a substantial living area of approximately 1,920 square feet, and features a layout of four bedrooms and two full bathrooms. Some retailers may list a slightly larger square footage, such as 1,920 square feet, for the Josey Wales.

The interior of the home is centered around an inviting open-concept design that seamlessly connects the living room, dining area, and the bright, modern kitchen. This layout is specifically intended to foster a warm and welcoming ambiance for both daily activities and social gatherings. A key focal point of the living area is the built-in entertainment center, which often includes a fireplace, creating a cozy space for relaxation.

The kitchen is designed for both functionality and style, featuring a center island that serves as a multi-purpose work station, serving area, and snack bar. Kitchen specifications commonly include 5-piece raised panel cabinet doors, white-lined kitchen cabinets, and a kitchen drawer stack. The kitchen is typically equipped with an 18-foot refrigerator with an icemaker and a dishwasher, with the floor finished in 16-inch tile.

The sleeping quarters are equally well-appointed. The large, privately located master bedroom boasts a luxurious ensuite bathroom. The master bath features both a large soaking tub and a separate stall shower, often a 48-inch shower with a door, along with dual sink vanities and a drawer unit. The other bedrooms are typically described as king-size guest rooms, served by a glamorous large second bath. An abundance of closet and storage capacity is featured throughout the home.

Structural and construction specifications for the MD-30-32 Josey Wales include an 8-foot sidewall height, 2×4 exterior and interior wall studs placed at 16 inches on center, and a 12-inch I-Beam frame with full-length outriggers and a detachable hitch. The home features premium vinyl siding on the exterior, with paneled shutters and mill-finished windows. Energy efficiency is addressed through an insulation package that includes R-11 insulation in the floors and walls, and R-19 insulation in the ceiling. The floor is constructed with 3/4-inch tongue and groove OSB floor decking over 2×6 floor joists set at 16 inches on center. The home is total electric, with a 200 AMP electrical service, an air-ready furnace, and a 30-gallon electric water heater. Interior finishes typically include 3-inch baseboards, trackless carpet with rebond padding, and 3-inch crown molding in the living room, kitchen, and hall.

 

Overview

Type Manufactured Home
Build Year 2026
Bed 4
Bath 2
Size 1,920

Features & Amenities

  • Features
  • Frame and Floor
  • Construction and Exterior
  • Electrical and Plumbing
  • Interior

Location

There are no reviews yet.

Contact AMHO