Kabco Fargo
Description
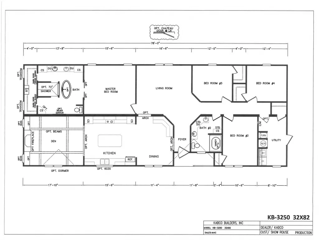
The Kabco Fargo (KB-3250): A Platinum Double-Wide of Exceptional Scale
The Kabco Fargo, designated as the KB-3250 model, is one of the most substantial and feature-rich double-wide manufactured homes in Kabco Builders’ Platinum Series. Boasting an impressive interior space of approximately 2,340 square feet with typical dimensions of 32 feet by 82 feet, this home is specifically engineered to provide maximum space, comfort, and luxury for large or growing families. The sheer scale of the Fargo is one of its most defining features, setting it apart with generous room sizes and ample room for daily life and large social gatherings.
The layout of the Fargo typically features four bedrooms and two full bathrooms, intelligently separating the living areas to enhance functionality. It is often designed with both a large, open-concept living area and a dedicated family room or den, providing flexible spaces for relaxation, entertainment, or even a home office. These common areas are characterized by vaulted ceilings and are finished with modern accents like durable tile flooring in the kitchen and baths, and plush, trackless carpet with rebond padding in the living spaces and bedrooms.
The gourmet kitchen is a chef’s dream, complete with modern cabinetry, often featuring a five-piece raised panel design, and a deluxe high-rise faucet with a sprayer over a deeper basin stainless steel sink. Kitchens in the Fargo model frequently include standard energy-efficient appliances, such as an 18-foot frost-free refrigerator and an electric range, complemented by deluxe lighting and a large preparation and serving area.
The private master suite is a luxurious sanctuary, large enough to be a true retreat. It typically features a spacious walk-in closet and an opulent ensuite bathroom. This primary bath often includes high-end details like porcelain sinks, deluxe wall lighting, a separate fiberglass shower, and a rejuvenating soaker tub—all designed for ultimate comfort and relaxation. Further standard features contributing to the Fargo’s quality construction include 2×4 exterior wall studs at 16-inch centers, high-quality vinyl siding, and a strong insulation package (R-11 in floors/walls, R-19 in the ceiling) for long-term efficiency. With its thoughtful design, high-end touches, and expansive size, the Kabco Fargo KB-3250 delivers a truly premium manufactured home experience.
Overview
Features & Amenities
- Features
- Frame and Floor
- Construction and Exterior
- Electrical and Plumbing
- Interior
- Kitchen and Bath
Location
Tag
Review
Login to Write Your ReviewThere are no reviews yet.



