Epic Crockett
Description
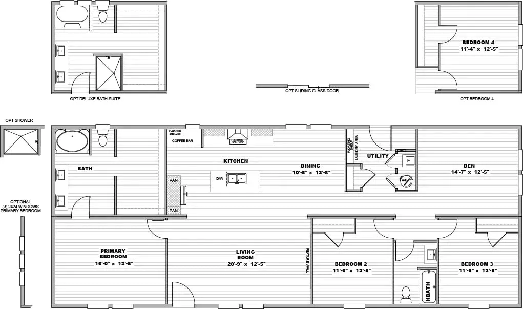
The Epic Crockett (often categorized within the Clayton Epic Journey or Adventure series) is a powerhouse of versatility and modern design. Spanning approximately 1,904 square feet with a 28′ x 68′ double-wide footprint, it is specifically engineered for large families or those who crave a dedicated flex space that can transition between a 3-bedroom or a 4-bedroom, 2-bathroom configuration.
Designed for Connection: The Living Core
The Crockett’s layout is centered around an expansive open-concept living area that feels more like a custom site-built home than a traditional manufactured model.
-
The Gourmet Kitchen: Acting as the home’s anchor, the kitchen features a massive decorative island with a deep stainless steel sink and a gooseneck faucet. High-end touches like 42-inch DuraCraft® overhead cabinets, a built-in coffee bar, and a stainless steel designer range hood come standard, ensuring the space is as functional as it is beautiful.
-
Dual Living Spaces: What makes the 4-bedroom version unique is the inclusion of a secondary living area or den. In the 4-bedroom layout, this space provides that crucial second “zone” for kids to play or for a quiet media room, preventing the main living room from feeling cluttered.
The Retreat: Primary Suite Excellence
The primary bedroom is a true “owner’s retreat,” separated from the guest bedrooms for maximum privacy. It features a massive walk-in closet and a “spa-style” ensuite bathroom. Highlights of the bathroom include double porcelain sinks, a furniture-style vanity, and a choice between a 60-inch one-piece fiberglass soaker tub/shower combo or a more elaborate glamour bath setup.
Built for the Future: Efficiency & Durability
The Crockett is part of the Energy Star® certified lineup, meaning it’s built to keep utility bills low and comfort levels high.
-
Thermal Package: Equipped with Lux Argon Gas Low-E thermo-pane windows and a superior insulation package ($R\text{-}38$ ceiling, $R\text{-}21$ walls, and $R\text{-}22/33$ floors).
-
Smart Tech: An ecobee® smart thermostat and a Carrier® high-efficiency furnace come standard, allowing for precise climate control from your smartphone.
-
Rugged Construction: Featuring 2×6 exterior walls, 2×6 floor joists on 16-inch centers, and a full OSB house wrap, this home is designed for long-term structural integrity.
With its sleek “Craftsman-style” exterior and modern “farmhouse” interior accents—like the framed décor wall in the living area—the Crockett offers an “Epic” lifestyle without the epic price tag.
Overview
Location
Tag
Review
Login to Write Your ReviewThere are no reviews yet.



