Clayton Epic Tide
Description
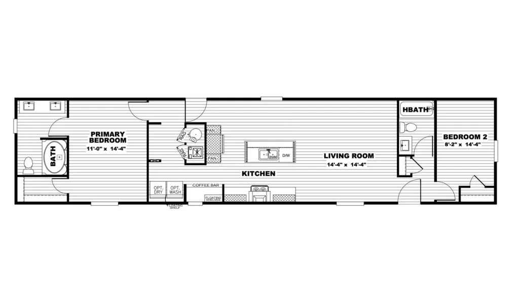
The Clayton Epic Tide is a single-section manufactured home that redefines efficient living, offering a spacious and modern design perfect for couples, small families, or individuals seeking a stylish and attainable home. This model typically measures 16′ x 68′ and encompasses 1,020 square feet of well-utilized space, featuring 2 bedrooms and 2 full bathrooms.
The defining characteristic of The Tide is its open-concept floor plan, which eliminates wasted hallway space. The main living area seamlessly integrates the living room, dining area, and kitchen, creating a bright, welcoming environment ideal for daily life and entertaining. The kitchen is a centerpiece, boasting a practical island with a breakfast bar that provides casual seating and extra prep space. It is equipped with a suite of modern features, including stainless steel appliances, a designer range hood, a deep stainless-steel sink with a gooseneck faucet, and high-quality 42-inch DuraCraft® overhead cabinets. A surprising and popular feature is the built-in coffee bar area, adding a custom touch to the kitchen space.
The home utilizes a highly desirable split-bedroom layout for maximum privacy. The primary suite is located at one end of the home, featuring a private en-suite bath that often includes a double-sink vanity and a one-piece fiberglass soaker tub/shower. The second bedroom and guest bath are situated at the opposite end. High-end finishes, such as a framed décor wall in the living area, upgraded Shaw® linoleum flooring throughout, and LED can lighting, contribute to a high-end feel.
Furthermore, the Epic Tide is built with a focus on durability and energy efficiency, often carrying an ENERGY STAR® rating. Key construction features include upgraded insulation (e.g., R38 roof, R13 walls, R22 floor), Lux Low-E thermal-pane windows, and an ecobee® smart thermostat, ensuring long-term comfort and cost savings. This blend of thoughtful design, functional separation, and modern amenities makes the Clayton Epic Tide a sophisticated and practical single-wide choice.
Overview
Location
Tag
Review
Login to Write Your ReviewThere are no reviews yet.



