Clayton Epic Summit
Description
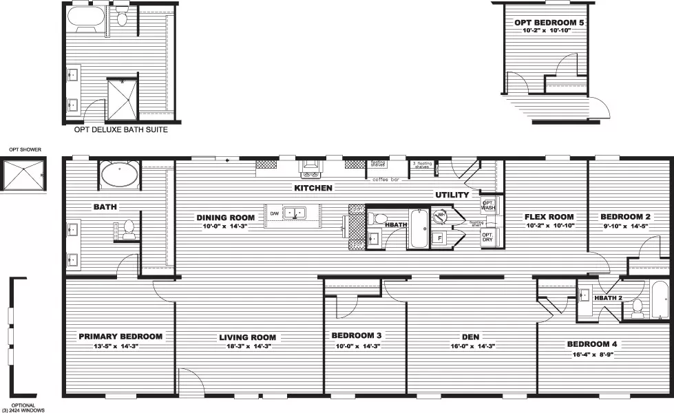
The Clayton Epic Summit is a massive and versatile double-section manufactured home, designed to accommodate large families with its exceptional space, contemporary style, and option for up to five bedrooms. Spanning 2,280 square feet (32′ x 76′), the Summit offers a masterfully planned layout that centers around expansive open living areas and includes multiple dedicated spaces for modern life.
The standard floor plan features 4 bedrooms and 3 full bathrooms, making it an excellent choice for a growing household. However, the Summit is highly prized for its available 5-bedroom, 3-bathroom configuration, achieved by converting the home’s multi-functional space into an additional private bedroom. This flexibility is a key differentiator, providing either an office, den, or a fifth bedroom to suit the family’s needs.
The main communal area is a sprawling, open-concept design that seamlessly connects the spacious living room, dining area, and a bright, modern kitchen. The kitchen stands as a central hub, featuring a large island with standard seating, full cabinet-wall-encased stainless steel refrigerator, a designer range hood, and the entire suite of ENERGY STAR® rated stainless steel appliances included as a standard. Thoughtful interior touches elevate the design, such as an accent décor wall in the living room and a convenient built-in coffee bar area in the kitchen.
Privacy is a priority, with the primary suite privately located and separated from the guest bedrooms. This main retreat includes a well-appointed en-suite bathroom with double sinks and a large walk-in closet. The two guest bathrooms are strategically located for easy access, with one often configured in a practical Jack-and-Jill style connecting two of the secondary bedrooms.
Built to Clayton’s eBuilt® standards for efficiency and durability, the Summit features upgraded insulation (R-38 roof, R-22 floor, R-13 walls), an ecobee® smart thermostat, and Lux Low-E thermal-pane windows, ensuring lower utility bills and year-round comfort. From the Craftsman-style exterior door to the DuraCraft® 42-inch overhead cabinets, the Epic Summit delivers premium space and high-end, contemporary features without the premium price tag.
Overview
Location
Tag
Review
Login to Write Your ReviewThere are no reviews yet.



