Clayton Epic Drake
Description
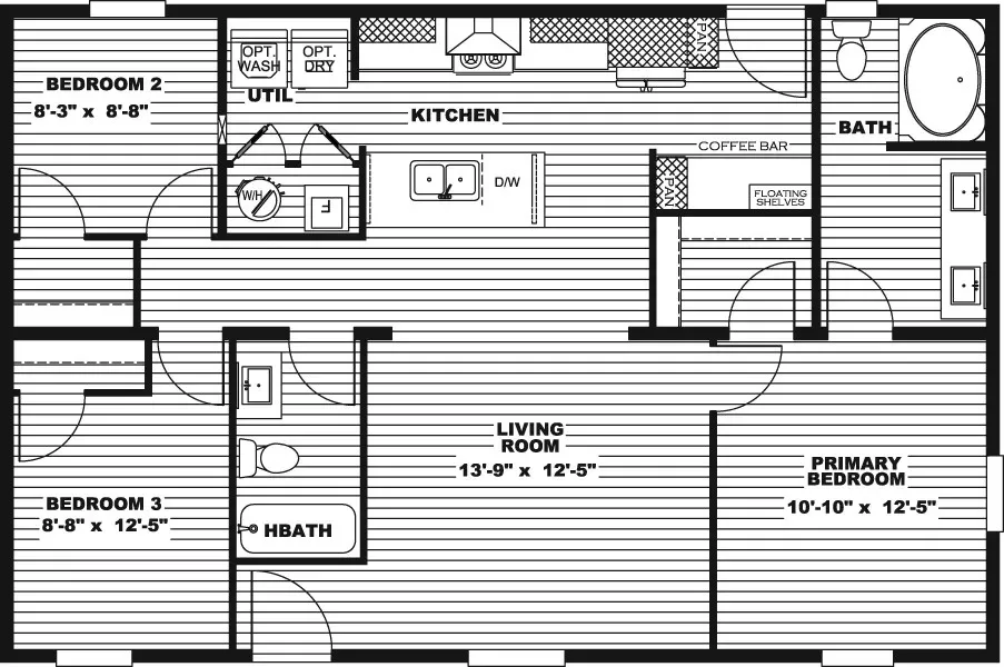
The Clayton Epic Drake is a beautifully designed, functional, and modern multi-section manufactured home from the Epic Journey series, built to deliver superior style and efficiency for contemporary family living. Spanning approximately 1,053 square feet, the Drake offers a comfortable and smart living solution with 3 bedrooms and 2 full bathrooms in a popular Ranch-style design, often configured as a double-wide with dimensions around 28′ x 40′.
The heart of the home is an inviting open-concept layout that effortlessly connects the living, dining, and kitchen areas, making it ideal for entertaining guests or simply enjoying time together. The kitchen is a standout feature, embodying the Epic series’ commitment to premium standard features. It boasts a complete stainless steel appliance package, including a side-by-side refrigerator, smooth-top Samsung® range, and dishwasher. The kitchen’s focal point is the large island, which adds practical prep space and an informal breakfast bar. Upscale details continue with the 42-inch DuraCraft® overhead cabinets, a deep stainless-steel kitchen sink, and a gooseneck Pfister® faucet. Additional thoughtful kitchen features, such as a dedicated coffee bar area and a decorative stainless steel range hood, enhance both functionality and visual appeal.
Privacy and relaxation are prioritized in the primary suite, which is strategically separated from the secondary bedrooms in a split-bedroom arrangement. The suite is a cozy retreat offering a substantial walk-in closet and a private primary bathroom, complete with a furniture-style vanity and double lavatories.
Structurally and environmentally, the Drake is engineered for high performance. It features a robust construction that includes 2×6 exterior walls with a full OSB and House Wrap, coupled with an Upgraded Insulation Package (R-38 in the ceiling, R-21 in the walls, and R-22/33 in the floor). Further enhancing its efficiency are Lux Low-E thermal pane windows and an ecobee® Smart Thermostat, ensuring maximum energy savings and year-round comfort. With high-quality PEX piping, whole-house water shut-offs, and a decorative framed accent wall in the living area, the Drake masterfully combines thoughtful design with exceptional value and long-term durability.
Overview
Location
Tag
Review
Login to Write Your ReviewThere are no reviews yet.



