Clayton Epic Cook
Description
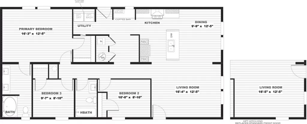
The Clayton Epic Cook is a generously sized and well-appointed multi-section manufactured home from the Epic Journey series, meticulously designed for modern families seeking both comfort and exceptional value. Spanning approximately 1,369 square feet, this 3-bedroom, 2-bathroom residence maximizes its 28′ x 52′ dimensions with a bright and highly functional open floor plan.
The central living space forms an ideal environment for daily life and entertaining, seamlessly integrating the living room, dining area, and chef-inspired kitchen. The living area is highlighted by a stylish framed décor wall, adding a modern, custom touch without extra cost. The kitchen is a true showpiece, featuring a comprehensive suite of Energy Star-rated stainless steel appliances, including a side-by-side refrigerator and smooth-top range. The large, decorative kitchen island serves as a focal point, providing extensive prep space, a casual dining area, and a natural gathering spot. Further enhancing the functionality are 42-inch DuraCraft® overhead cabinets and a dedicated coffee bar area leading into the sizable utility/laundry room, which doubles as a convenient rear entrance/mudroom.
Privacy is prioritized with a thoughtfully laid out split floor plan. The spacious primary suite offers a private sanctuary, complete with a walk-in closet and a luxurious primary bath featuring a furniture-style vanity and double lavatories.
As an Epic series home, the Cook model is built with a commitment to quality and energy efficiency. Standard construction features include 2×6 exterior walls, a full OSB wrap with house wrap, and an Upgraded Insulation Package (R-38 ceiling, R-21 walls, R-22/33 floors) to ensure year-round comfort and lower utility bills. Modern, high-performance features like the ecobee® Smart Thermostat, Lux Low-E thermo-pane windows, and a Rheem® Hybrid Heat Pump Water Heater underscore the home’s dedication to sustainable, smart, and stress-free living. The Cook offers a perfect balance of upscale finishes and practical, durable construction, making it an outstanding investment for contemporary homeownership.
Overview
Location
Tag
Review
Login to Write Your ReviewThere are no reviews yet.



