Cavco Pegasus 32583H
Description
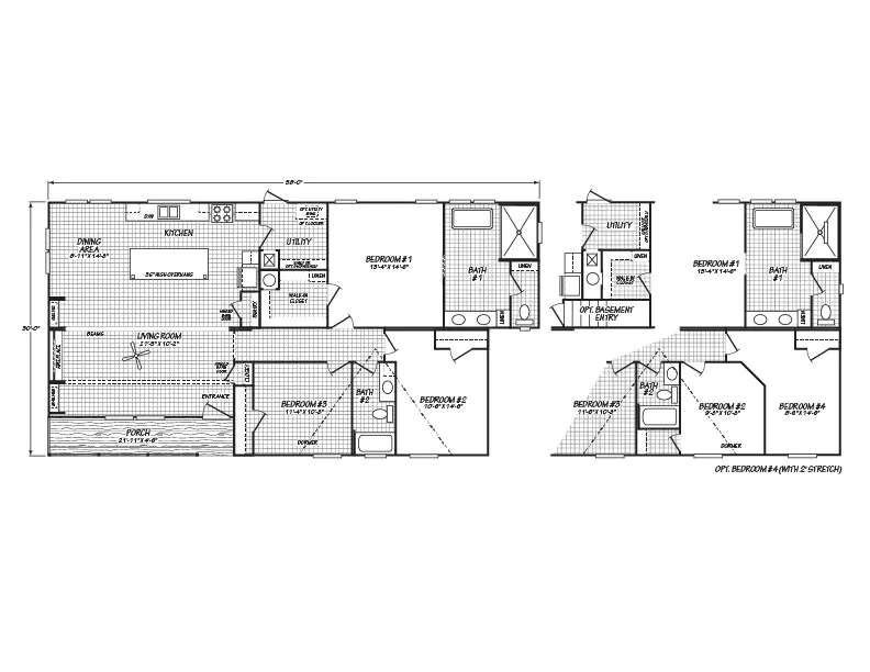
The Cavco Pegasus 32583H is a popular manufactured home model. While the specific floor plan number, 32583H, commonly indicates a 3-bedroom, 2-bathroom layout totaling 1,540 square feet, the overall design and features are consistently focused on modern living and value. The double-wide home measures approximately 32 feet by 58 feet and is part of the Pegasus series, known for offering value-priced homes with a strong list of standard features.
✨ Key Features and Design
The home typically boasts an inviting aesthetic, often featuring a large covered porch entrance that spans the width of the spacious living room. The beamed ceiling in the living room adds a custom, open feel to the main living area. This space flows seamlessly into a large, modern kitchen equipped with an elongated island that serves as a gathering bar, ideal for casual dining and entertaining. A bright, dedicated dining area and a utility/laundry room at the rear exit add to the home’s practical layout.
The master bedroom is designed as a comfortable retreat, often featuring a large walk-in closet and a luxurious en-suite master bath. The master bathroom frequently includes a double rectangle porcelain sink vanity and a sizable ceramic shower with a sliding door, while the guest bath includes a fiberglass tub/shower unit.
🏡 Construction and Standard Amenities
The Pegasus 32583H is constructed with a focus on durability and energy efficiency, including 8-foot flat ceilings and 2×6 exterior wall construction. Standard energy-saving features often include Vinyl Low E Dual Pane windows and a substantial insulation package (like R-22 walls and R-28 or R-40 ceiling).
Interior finishes highlight contemporary style, featuring 42-inch overhead kitchen cabinets with MDF shaker doors, satin nickel hardware, and often a stainless steel farmhouse apron sink. Recessed LED lighting is used throughout the home, including in the utility areas and closets, ensuring a bright, modern ambiance. Appliances typically include a stainless or black refrigerator and a smooth-top range. For flooring, vinyl is common in the main living areas, kitchen, and baths, with carpet in the bedrooms. The home comes with a 40-gallon electric water heater and 200 AMP total electric service.
Overview
Features & Amenities
- Facts and Features
- Square Feet: 1540
- Bedrooms: 3
- Bathrooms: 2
- Style: Double-wide
- Dimensional Area:
- Series: Pegasus
- Home Type: Manufactured
Location
Tag
Review
Login to Write Your ReviewThere are no reviews yet.



