Cavco Berkshire Model 16662
Description
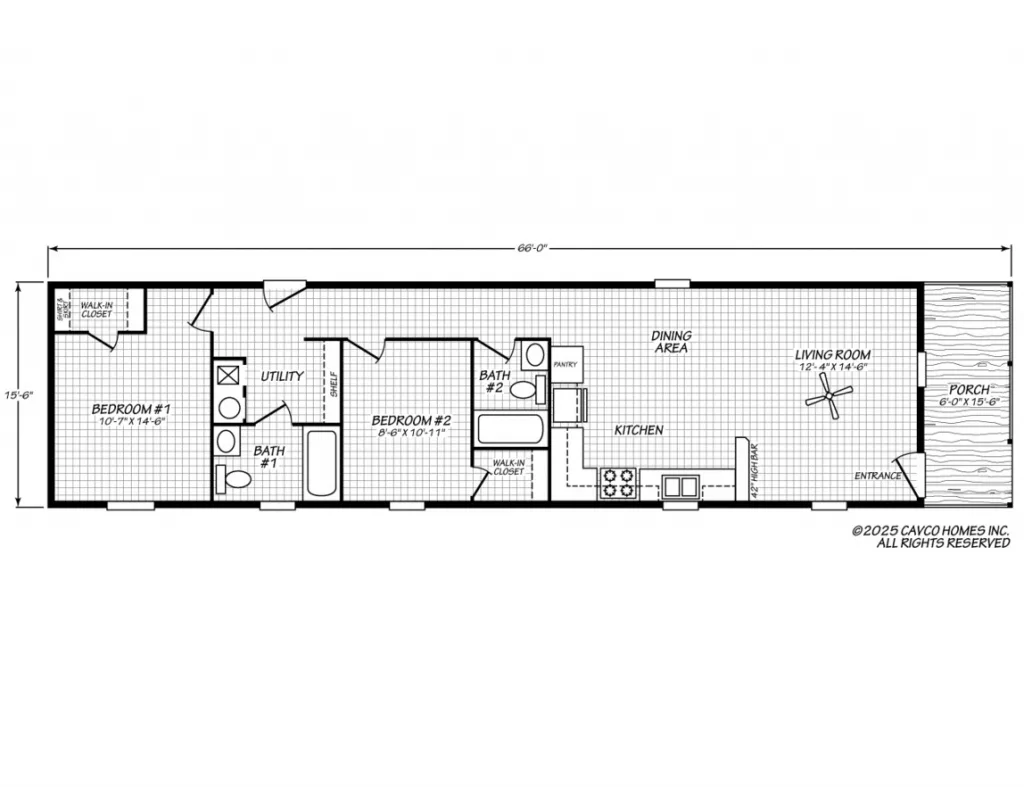
Cavco Berkshire Model 16662 (often referred to as the 16662) is an affordable and efficiently designed single-section manufactured home offered through Cavco’s Rocky Mount division. This charming property provides 930 square feet of living space, configured as a practical two-bedroom, two-bathroom layout, typically measuring 16 feet wide by 66 feet long. The model is specifically engineered to maximize functionality within a compact footprint, making it an excellent choice for first-time homeowners, small families, or those seeking to downsize without sacrificing comfort.
🏠 Interior Layout and Finishes
The design of the 16662 emphasizes a split-bedroom configuration, positioning the bedrooms and their corresponding full bathrooms at opposite ends of the home. This layout is highly desirable as it creates two private retreats, allowing it to function effectively for roommates or as a design featuring two master suites. The central area of the home is dedicated to a spacious living room that flows seamlessly into the kitchen and dining area, promoting a cohesive and open feel.
The kitchen is equipped with modern features, including 42-inch overhead cabinets with decorative crown molding and hidden hinges, and black appliances such as an 18 cubic foot refrigerator and a coil top range. Cabinets have MDF Shaker doors and Satin Nickel hardware, providing a contemporary aesthetic. Throughout the home, standard decor elements include designer-coordinated vinyl on gypsum wall panels, White 2-panel interior doors, and recessed LED lighting in all main areas, including baths and closets, enhancing energy efficiency and visual appeal.
🏗️ Construction and Energy Specifications
Built on a robust steel chassis with Wind Zone I Construction (standard), the Berkshire 16662 adheres to strong build standards. The home features 2×4 exterior wall studs and 2×6 floor joists (often upgraded to 2×8 for 16′ wide homes) placed 16 inches on center, covered with 19/32″ OSB floor decking. The exterior is finished with durable vinyl siding and a roof boasting 25-year shingles on 7/16″ OSB sheathing with a 3/12 pitch.
Energy efficiency is a key focus, with standard insulation packages often featuring R-11 in the floor and walls and R-22 blown insulation in the ceiling (R-40, R-21, R-33 in some regional specs). This is complemented by Vinyl Low-E Dual Pane Windows and a sealed, insulated duct system for the electric furnace. The electrical service is a 200 AMP total electric system, and plumbing uses PEX supply lines and a 40-gallon electric water heater.
Overview
Location
Tag
Review
Login to Write Your ReviewThere are no reviews yet.



